إعلان جديد
تسجيل الدخول
تسجيل الدخول
البريد الالكتروني
كلمة السر
تسجيل الدخول
إنشاء حساب جديد
نسيت كلمة السر
التمويل التجارى
مدينه شرم الشيخ وتوابع لها، قسم اول شرم الشيخ
الخميس، 20 مارس 2025 في 11:52 ص
نوع العقار:
شقق / بيع
غرف نوم
2
الحمامات
2
تاريخ التسليم
2025
الدور
0
نوع التشطيب
EXTRA_SUPER_LUX
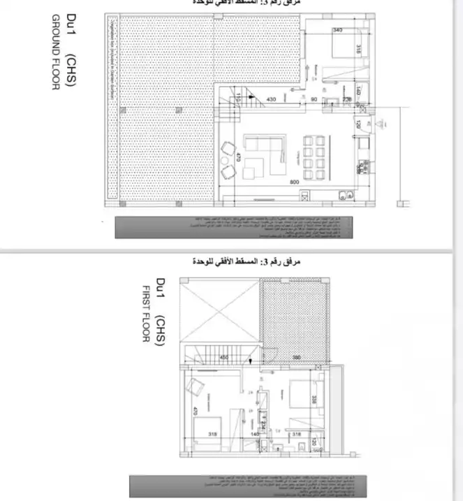
دوبلكس مساحة 155 متر وجاردن 110
العنوان:
IL Monte Galala Resort - Tatweer Misr، Ain Sokhna Resorts
إظهار الخريطة